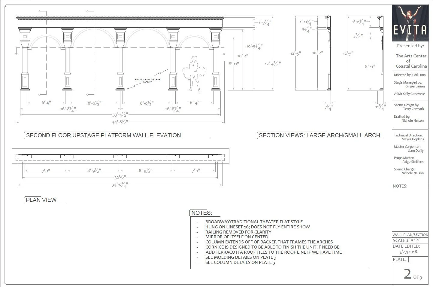
Evita! by Tim Rice
Charge Artist

The Arts Center of Coastal Carolina
Scenic Design by Brian Riley, Terry Cermark, & Nichole Nelson

Production Photos

These are the materials I was asked to produce after the original designer had to step away. The production manager and I stepped in and finished the show as a team.